Схемы разъездов

Разъезд полупродольного типа. Обгонный пункт полупродольного типа. Схемы разъездов. Схема скрещения поездов. Схема пофазного разъезда.
Разъезд полупродольного типа. Обгонный пункт полупродольного типа. Схемы разъездов. Схема скрещения поездов. Схема пофазного разъезда.
Основные устройства разъездов. Разъезд полупродольного типа. Схемы разъездов. Продольная схема расположения приёмо-отправочных путей. Схемы разъездов.
Основные устройства разъездов. Разъезд полупродольного типа. Схемы разъездов. Продольная схема расположения приёмо-отправочных путей. Схемы разъездов.
Схема с продольным расположением приемо отправочных путей. Схемы разъездов на карьерах. Схемы разъездов. Схема обгонного пункта полупродольного типа. Схема обгонного пункта полупродольного типа.
Схема с продольным расположением приемо отправочных путей. Схемы разъездов на карьерах. Схемы разъездов. Схема обгонного пункта полупродольного типа. Схема обгонного пункта полупродольного типа.
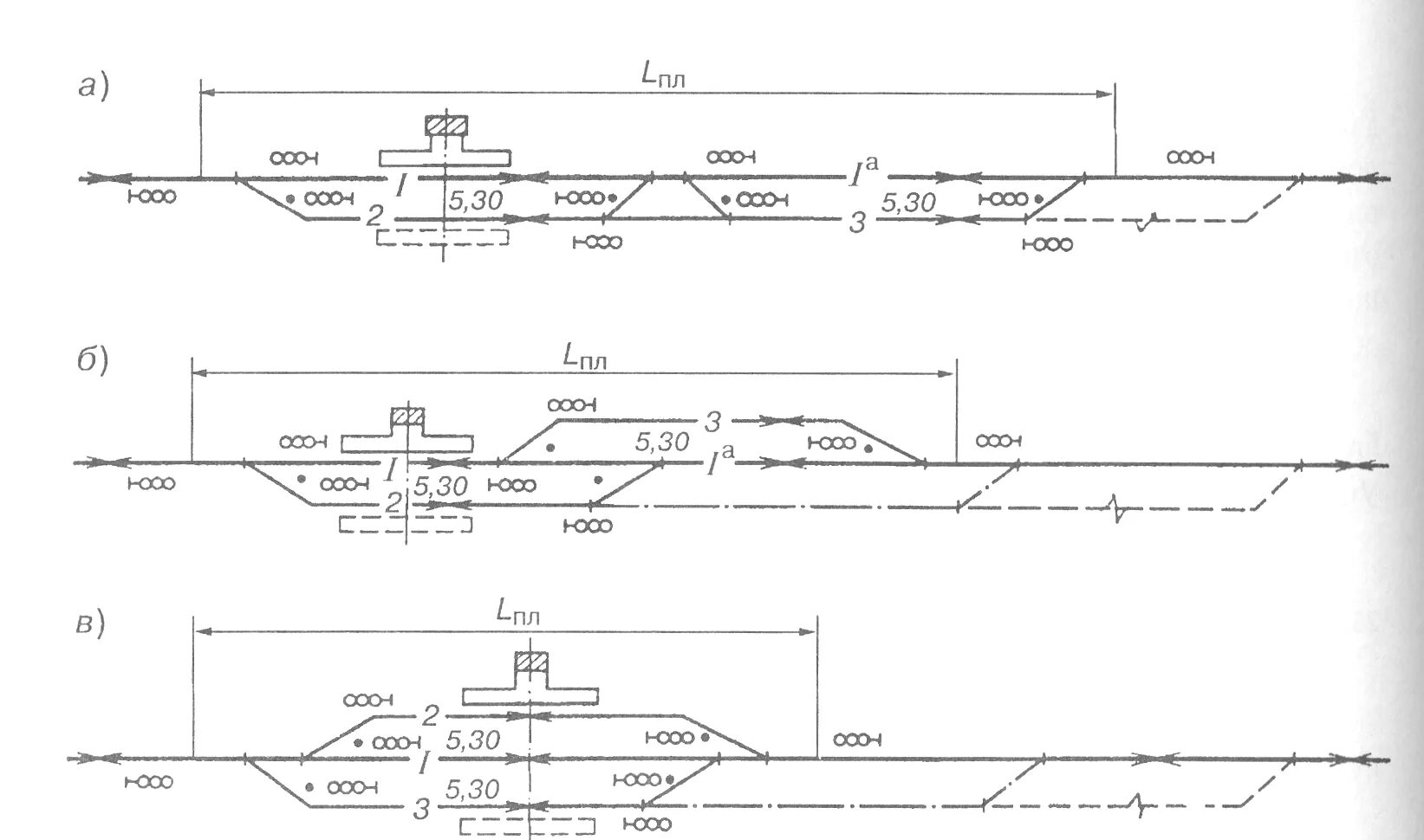
Схемы разъездов. Схемы разъездов. Схема с продольным расположением приемо отправочных путей. Схемы разъездов. Схема разъезда поперечного типа.
Схемы разъездов. Схемы разъездов. Схема с продольным расположением приемо отправочных путей. Схемы разъездов. Схема разъезда поперечного типа.
Схемы разъездов. Схема разъезда жд. Обгонный пункт полупродольного типа. Схемы разъездов. Схема разъезда полупродольного типа.
Схемы разъездов. Схема разъезда жд. Обгонный пункт полупродольного типа. Схемы разъездов. Схема разъезда полупродольного типа.
Схема разъезда жд. Схемы разъездов. Схемы разъездов и обгонных пунктов. Схема разъезда поперечного типа. Схема разъезда продольного типа.
Схема разъезда жд. Схемы разъездов. Схемы разъездов и обгонных пунктов. Схема разъезда поперечного типа. Схема разъезда продольного типа.
Схема продольного разъезда на жд. Схема разъезда полупродольного типа. Схема расположения приёмо-отправочных путей. Поперечная схема разъезда. Раздельные пункты разъезд.
Схема продольного разъезда на жд. Схема разъезда полупродольного типа. Схема расположения приёмо-отправочных путей. Поперечная схема разъезда. Раздельные пункты разъезд.
Схема обгонного пункта полупродольного типа. Обгонный пункт полупродольного типа. Схема промежуточной станции суземка. Схема разъезда жд. Схемы разъездов.
Схема обгонного пункта полупродольного типа. Обгонный пункт полупродольного типа. Схема промежуточной станции суземка. Схема разъезда жд. Схемы разъездов.
Предохранительный тупик на схеме. Поперечная схема разъезда. Разъезд схема. Схема разъезда поперечного типа. Схемы разъездов.
Предохранительный тупик на схеме. Поперечная схема разъезда. Разъезд схема. Схема разъезда поперечного типа. Схемы разъездов.
Обгонный пункт полупродольного типа. Требования к расположению станций, разъездов, обгонных пунктов. Схема разъезда жд. Пофазный разъезд транспортных средств на перекрестке. Схема поперечного продольног оразьезда.
Обгонный пункт полупродольного типа. Требования к расположению станций, разъездов, обгонных пунктов. Схема разъезда жд. Пофазный разъезд транспортных средств на перекрестке. Схема поперечного продольног оразьезда.
Схемы разъездов. Схема поперечного продольног оразьезда. Разъезд полупродольного типа. Схемы промежуточных станций многопутных линиях. Схемы разъездов.
Схемы разъездов. Схема поперечного продольног оразьезда. Разъезд полупродольного типа. Схемы промежуточных станций многопутных линиях. Схемы разъездов.
14. Разъезд полупродольного типа. Разъезд полупродольного типа. Схемы разъездов и обгонных пунктов. Схема обгонного пункта жд.
14. Разъезд полупродольного типа. Разъезд полупродольного типа. Схемы разъездов и обгонных пунктов. Схема обгонного пункта жд.
Схемы разъездов. Схемы разъездов. Схема разъезда полупродольного типа. Схема разъезда жд. Схема разъездов с полупродольным расположением путей.
Схемы разъездов. Схемы разъездов. Схема разъезда полупродольного типа. Схема разъезда жд. Схема разъездов с полупродольным расположением путей.
Схема промежуточной станции четырехпутной линии. Разъезд полупродольного типа. Расстояние между центрами стрелочных переводов. Схема обгонного пункта станции. Схемы разъездов.
Схема промежуточной станции четырехпутной линии. Разъезд полупродольного типа. Расстояние между центрами стрелочных переводов. Схема обгонного пункта станции. Схемы разъездов.
Схемы разъездов. Схемы разъездов. Схема разъездов с полупродольным расположением путей. Схемы разъездов. Обгонный пункт полупродольного типа.
Схемы разъездов. Схемы разъездов. Схема разъездов с полупродольным расположением путей. Схемы разъездов. Обгонный пункт полупродольного типа.
Схемы разъездов для безостановочного скрещения поездов. Разъезд полупродольного типа. Схема обгонного пункта жд. Продольная схема расположения приёмо-отправочных путей. Поперечный разъезд жд схема.
Схемы разъездов для безостановочного скрещения поездов. Разъезд полупродольного типа. Схема обгонного пункта жд. Продольная схема расположения приёмо-отправочных путей. Поперечный разъезд жд схема.
Схема разъезда на перекрестке. Схема движения на перекрестке. Схема раздельного пункта жд. Поперечный разъезд жд схема. Схема разъезда жд.
Схема разъезда на перекрестке. Схема движения на перекрестке. Схема раздельного пункта жд. Поперечный разъезд жд схема. Схема разъезда жд.
Основные устройства разъездов. Поперечная схема разъезда. Схемы разъездов. Схема движения на перекрестке. Поперечный разъезд жд схема.
Основные устройства разъездов. Поперечная схема разъезда. Схемы разъездов. Схема движения на перекрестке. Поперечный разъезд жд схема.
Схема разъезда поперечного типа. Обгонный пункт полупродольного типа. Обгонный пункт полупродольного типа. Схемы разъездов. Схема с продольным расположением приемо отправочных путей.
Схема разъезда поперечного типа. Обгонный пункт полупродольного типа. Обгонный пункт полупродольного типа. Схемы разъездов. Схема с продольным расположением приемо отправочных путей.
Раздельные пункты разъезд. Раздельные пункты разъезд. Схема разъезда поперечного типа. Схемы разъездов. 14.
Раздельные пункты разъезд. Раздельные пункты разъезд. Схема разъезда поперечного типа. Схемы разъездов. 14.